144 Wright Street, Adelaide
Character Cottage for Rent in Adelaide CBD
Now the property is open for online application through “RealEstate.com.au” by clicking the "Apply" button on the rental listing webpage on realestate.com.au or you could download the application from our website, and fill it in and email us back along with all the supporting documents. http://www.korn.com.au/rental-application-form
-----------------------------------------
TENANCY INFORMATION
Lease term: Min 12 months. Negotiable
Unfurnished
Pets negotiable
Smoking not permitted indoors
Car parking available upon request (1 space only) at an additional cost of $70 per week.
-------------------------------------
Nobody Does It Better in the Adelaide CBD!
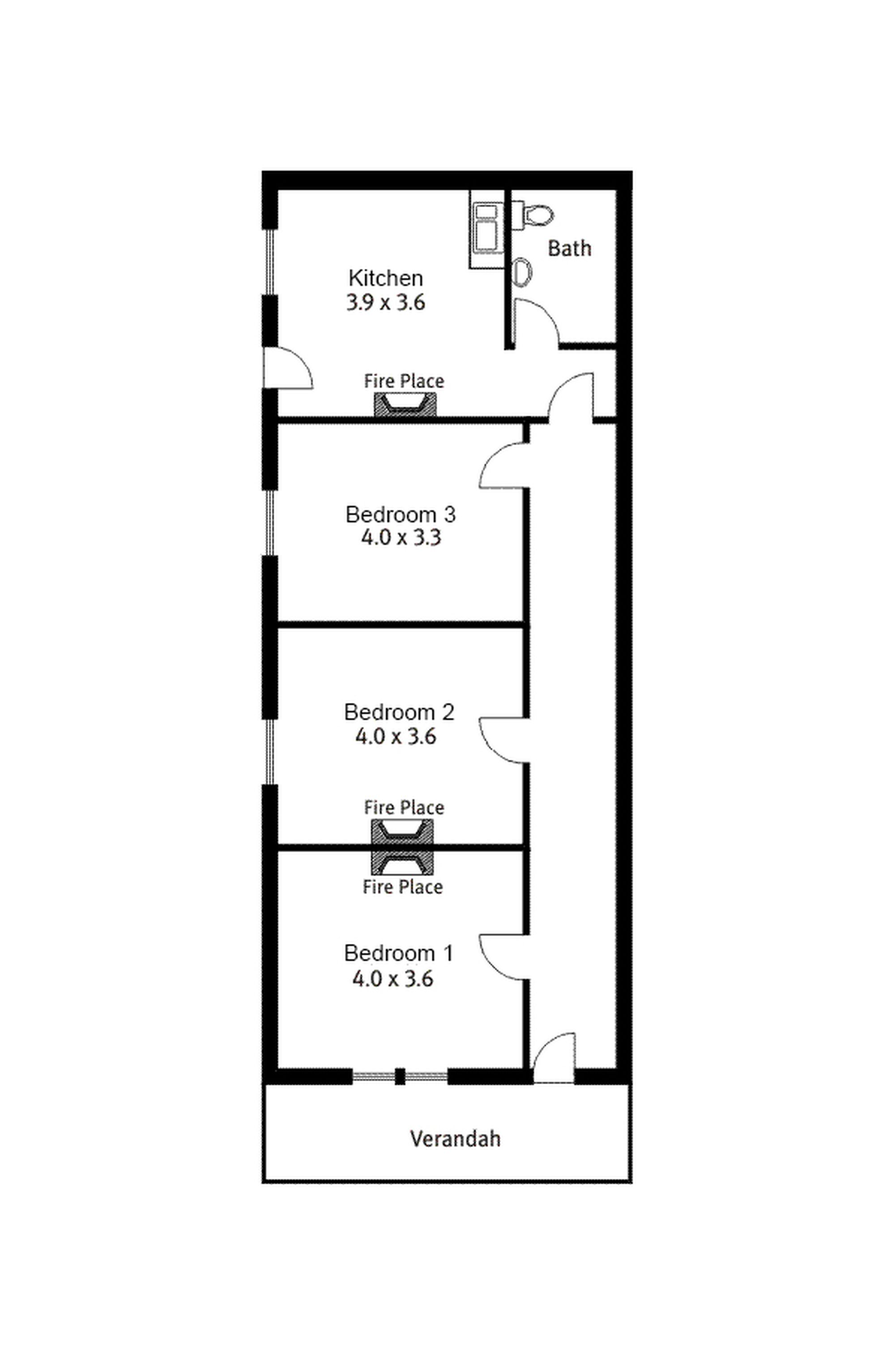
Located in the Central Market District, this stunning cottage offers three large rooms, large space in the kitchen, bathroom amenities, a/c split system, and heritage style accents such as hardwood floors and high ceilings.
Features:
* 3 Large bedrooms with new carpet
* Large fully equipped kitchen
* A/C split system
* High ceilings and floorboards in hallway and kitchen
* Superbly Located with Enormous Flexibility
* Ideally located opposite Whitmore Square and near Gouger Street
Disclaimer - The information contained here is gathered from a source that we believe to be reliable. However, we cannot guarantee its accuracy and do not accept any responsibility for its accuracy. All interested parties should rely on their own independent searches and Legal advice. RLA 255949












